5440 Kunszentmárton, Szent Imre herceg utca

30.900.000 Ft

Az ingatlan leírása

Megnevezés:Lakóház
Alapterület (telek/épület):658 m2 / 219 m2
Szobák száma:5 szoba
Közműellátottság:Víz, csatorna, áram és gáz – rendelkezésre áll, de hálózatról leválasztva
Komfortfokozat:összkomfortos
Szerkezete:tégla szerkezetű
Fűtés módja:gázkazán
Kikiáltási ár:*30 900 000 Ft

*csak tájékoztató jellegű, a hivatalos adatok az MNV Zrt. honlapján találhatók.

Árverés időpontjával kapcsolatosan, az info@neteletjaradek.hu email címen kérhetnek tájékoztatást! Az üzenetben kérnénk feltüntetni az ingatlan címét is.

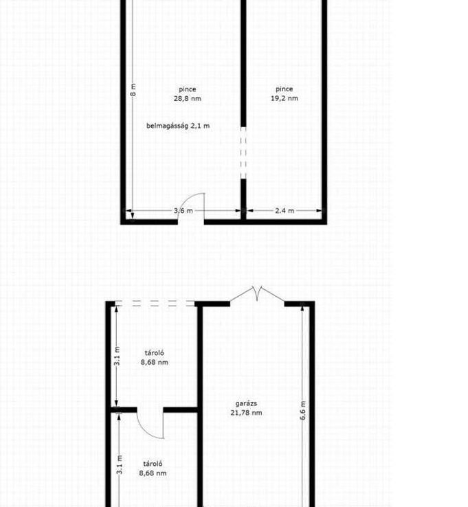
INGATLAN BEMUTATÁSA

•pince + földszint + emelet szint eloszlású,
•4 hálószoba + nappali,
•falazata hagyományos módon épült tégla,
•homlokzata hővédelemmel nem rendelkezik,
•lapostetős,
•helyiségei, jól szellőztethetők, természetes fénnyel ellátottak,
•padló burkolatok: kerámia és parketta,
•fűtése és a melegvíz ellátsa központi gázkazánról történik, radiátor hőleadókkal,
•felújítandó ( műszaki és esztétikai ) állapotú,
•garázs, gazdasági épület (tároló funkció),

Az ingatlant terhelő szennyvízelvezetési szolgalmi jog megszüntetése, a csatorna közvetlen rákötésének kivitelezési költsége a vevőt terhelik. A tervezés már folyamatban, melynek díja megfizetésre került.

Az itt feltüntettet ár, csak irányár!

A meghirdetett ingatlan értékesítése az MNV Zrt. honlapján, KIZÁRÓLAG a Magyar Nemzeti Vagyonkezelő Zrt. elektronikus árverési felületén történik. Más értékesítési formára nincs lehetőség. Licitálni, a licitálás állásáról, folyamatáról csak ott lehet informálódni.

Erről bővebb leírást talál a tájékoztatónkban, illetve az MNV Zrt. EAR oldalán.

Ingatlan elhelyezkedése:

  • Ország: Hungary
  • Megye: Jász-Nagykun-Szolnok
  • Város: Kunszentmárton

Előző ingatlan

2800 Tatabánya, Mártírok útja

Következő ingatlan

2400 Dunaújváros, Erdősor utca