2510 Dorog, Pataksor-alsó u. 38.

42.600.000 Ft

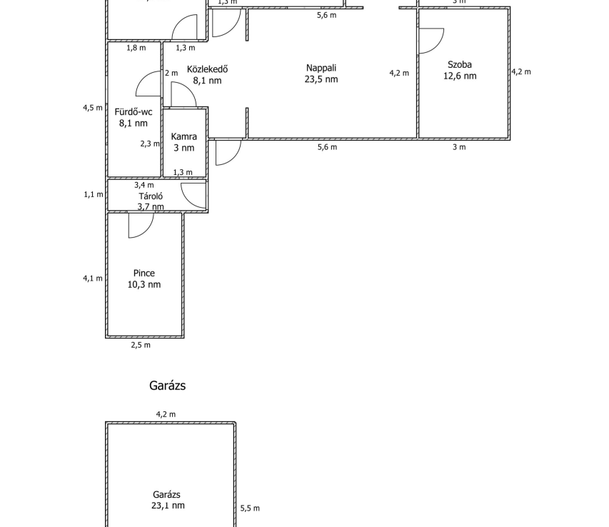
Az ingatlan leírása

Megnevezés:Lakóház
Alapterület (épület/telek):551 / 84 m2
Szobák száma:3 szoba
Közműellátottság:Víz, csatorna, gáz és áram – rendelkezésre áll, de hálózatról leválasztva
Komfortfokozat:Összkomfortos
Szerkezete:Tégla szerkezetű
Fűtés módja:gázkazán
Kikiáltási ár:*42 600 000 Ft

*csak tájékoztató jellegű, a hivatalos adatok az MNV Zrt. honlapján találhatók.

Árverés időpontjával kapcsolatosan, az info@neteletjaradek.hu email címen kérhetnek tájékoztatást! Az üzenetben kérnénk feltüntetni az ingatlan címét is.

INGATLAN BEMUTATÁSA

A telek területe 551 nm, egy utcára nyílik, lejtős terepen található, teljesen körbekerített, szabályos négyszög alakú. A felépítmény redukált területe: 84 nm. Kb. 1960-ban, hagyományos építési módban, tégla falazóelemekből épült kertes, családi lakóház. Összközműves. Felújítandó. A fűtést gázkazán biztosítja, radiátoros hőleadókkal és padlófűtéssel. A meleg vízellátást villanybojler szolgáltatja. Az építészmérnöki szakvélemény alapján az ingatlan életveszélyes a nappali födémbeszakadása miatt. Az épület még nem bontandó, helyreállítható, jelenleg alá van dúcolva. A lakóház jelenlegi műszaki állapotára tekintettel a lakhatási igények kielégítésére nem alkalmas. A szobákban felázás miatti vakolatleválás látható. A homlokzati nyílászárók 1 rétegű fa ablakok. A telek utcafronti részén található egy felújítandó, garázsként szolgáló melléképület. A természetbeni és térképmásolaton jelölt állapot eltér. A térképmásolaton még 2 külön épület van feltüntetve, melyek a jelenlegi közlekedővel lettek egybe építve. A lakóház hátsó feléhez hozzáépítettek egy tárolót és pincét. Ezek a térképmásolat szerint a 162/4-es helyrajzi számú telekre nyúlnak át.

Az itt feltüntettet ár, csak irányár!

A meghirdetett ingatlan értékesítése az MNV Zrt. honlapján, KIZÁRÓLAG a Magyar Nemzeti Vagyonkezelő Zrt. elektronikus árverési felületén történik. Más értékesítési formára nincs lehetőség. Licitálni, a licitálás állásáról, folyamatáról csak ott lehet informálódni.

Erről bővebb leírást talál a tájékoztatónkban, illetve az MNV Zrt. EAR oldalán.

Ingatlan elhelyezkedése:

  • Ország: Hungary
  • Megye: Komárom-Esztergom
  • Város: Dorog

Előző ingatlan

1139 Budapest, Röppentyű köz 3.

Következő ingatlan

2800 Tatabánya, Bánhidai lakótelep 104.